
CASA C
Locație: sat Covaci, Timiș
An construcție: 2018-2019
Suprafață construită: 358 m²
Echipă arhitecți: arh. Silvia Tripșa, arh. Victor Popovici
Colaboratori specialități: Plan Design srl - structură
Fotograf: arh. Ovidiu Micșa
O casă pentru trei generații
Orice casă are o poveste.
În acest caz, este povestea unei familii care, în fiecare vară, se reunește pentru câteva săptămâni..
Pentru că vechea casă tradițională nu mai oferea condițiile necesare pentru momentele când întreaga familie se aduna, în anul 2017 se ia hotărârea de a se construi o nouă casă, pe terenul celei existente.
Tema primită de noi, ca arhitecți, a fost clară : o casă cu parter și etaj, cu două unități de locuit separate, una pentru bunicii permanent rezidenți și una pentru familia formată din doi părinți și doi copii. O cerință specială a fost existența unor spații suficient de mari pentru a acomoda întâlnirile familiei reunite. Astfel casa găzduieşte la nivelul parterului locuinţa bunicilor, la etaj locuinţa familiei tinere, iar în loft spaţiile de joacă ale copiilor. Spaţiile sunt fluide, comunică între ele atât la nivel planimetric, cât şi la nivel de secţiune.
Casa propusă este o lucrare contemporană care reinterpretează arhitectura rurală din Banat, având un fronton simplu cu brâuri şi o terasă substrasă din volum precum tradiţionalul “şofru” şi un registru de ferestre care fac trimitere la prispă.
Volumetria a fost concepută pentru a oferi tuturor spaţiilor conexiune cu natura şi o iluminare deosebită.
Statut: construit
Fațadă laterală
Fațadă la stradă
Secțiune
Secțiune
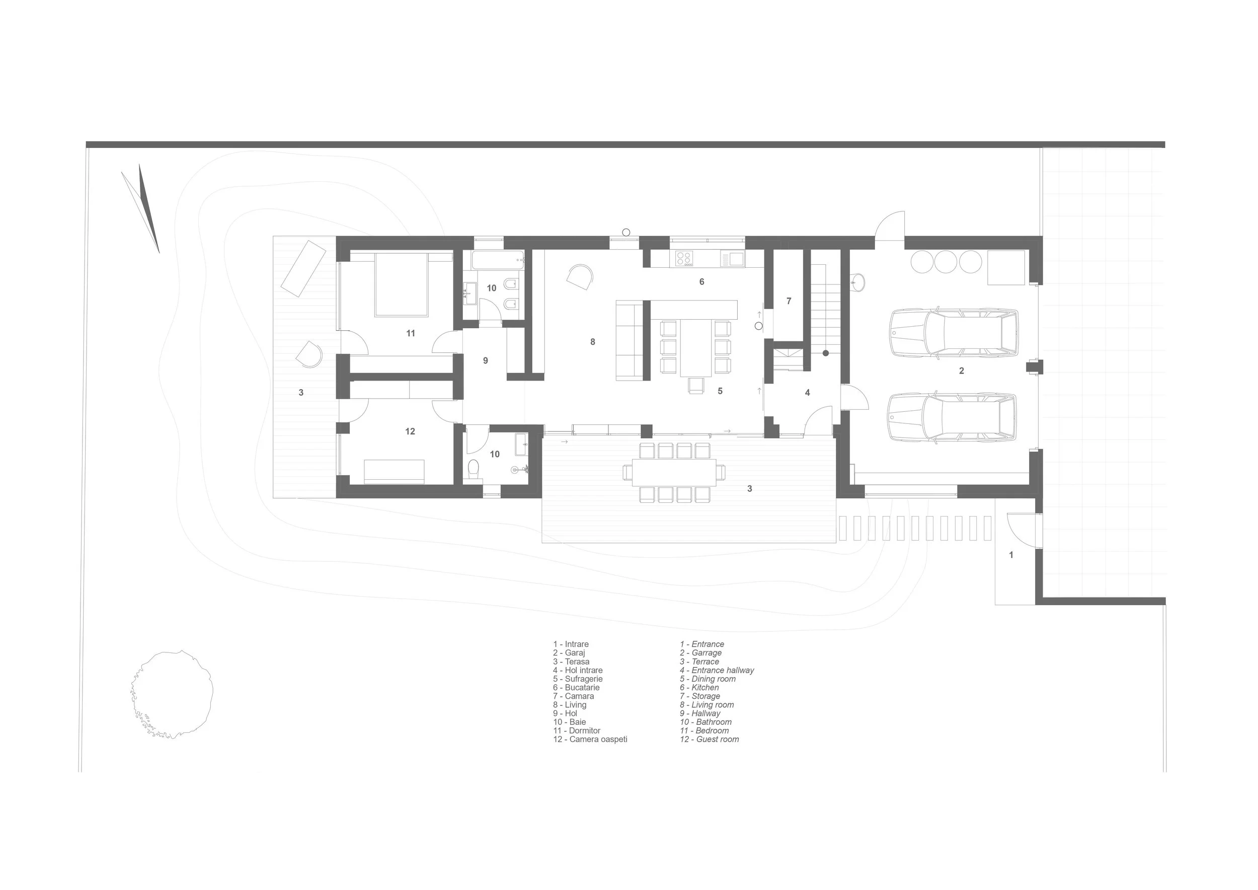
Plan parter
Plan etaj
Plan mansardă